Sorterargatan 35, Stockholm

Lagerlokal med lastkaj i Vinsta

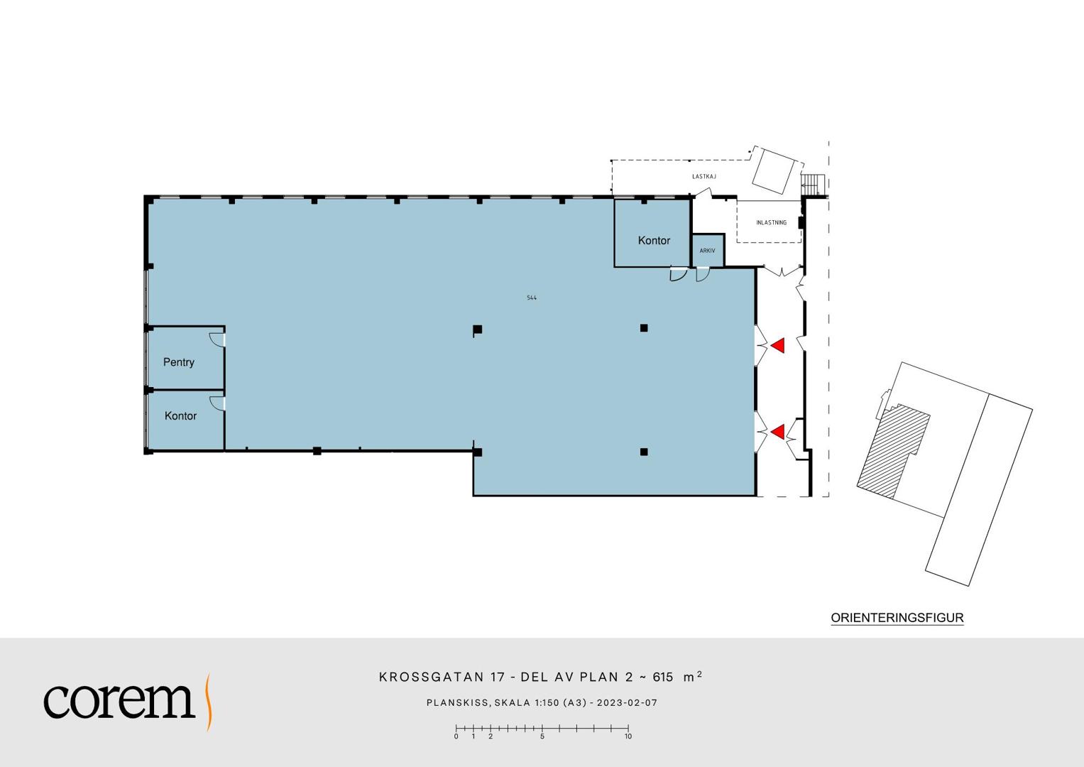
Om lokalen

Sorterargatan 35

  • Område

    Stockholm

  • Lokaltyp

    Lager

  • Lokalstorlek

    615 kvm

Lokalen

Välkommen till en ljus lager- eller förrådslokal i strategiskt läge. Här har du smidig tillgång till lastkaj, vilket förenklar hanteringen av leveranser och försändelser. Lokalen har en takhöjd på 3,3 meter och lastporten är 2,20 meter hög. Det finns gott om parkeringar att hyra på ett inhägnat område.

Kontakta oss gärna för mer information eller för att boka en visning.

Området

Vinsta är en stadsdel i Västerort i Stockholm. Området består dels av Vinsta företagspark (tidigare Johannelunds industriområde), dels av kullen och grönområdet Johannelundstoppen. Här har du nära till restauranger och livsmedelsaffärer. Närliggande Vällingby Centrum erbjuder dessutom all önskvärd service.

Vinsta är en del av ABC-staden Vällingby, där ABC står för arbete, bostad och centrum. Området Vinsta-Johannelund är under stark utveckling. Här byggs bostäder, arbetsplatser, parker med mera. Det planeras bland annat för en knutpunkt för kollektivtrafiken med en ny bussterminal. När Förbifart Stockholm med trafikplats Vinsta färdigställs kommer detta dessutom att öka områdets tillgänglighet genom närheten till det regionala vägnätet.

Kommunikationer

Fem minuters gångpromenad från tunnelbanestationen Johannelund och den gröna linjen. Flertalet bussar trafikerar området, som ligger i direkt anslutning till Förbifart Stockholm.

Parkering

Det finns goda parkeringsmöjligheter i området.

Övrigt

Corem erbjuder lokalt baserad förvaltning och drift. Vi finns alltid nära till hands när det behövs och delar gärna med oss av vårt breda kunnande inom lokal- och fastighetsfrågor. Närhet och engagemang är våra ledord. Tillsammans hittar vi kreativa lösningar för att göra din arbetsplats så bra som möjligt. Du som kund är alltid i vårt fokus.

Bilder

Karta
Intresseanmälan

Anmäl ditt intresse för
Sorterargatan 35

Fyll i dina uppgifter i formuläret, så hör vi av oss snabbt för att diskutera dina behov och önskemål.

  • Genom att klicka på kontakta mig samtycker jag till att min angivna e-postadress behandlas enligt gällande integritetspolicy.