Om lokalen
Torshamnsgatan 48
-
Område
Kista
-
Lokaltyp
Kontor
-
Lokalstorlek
139 kvm
Lokalen
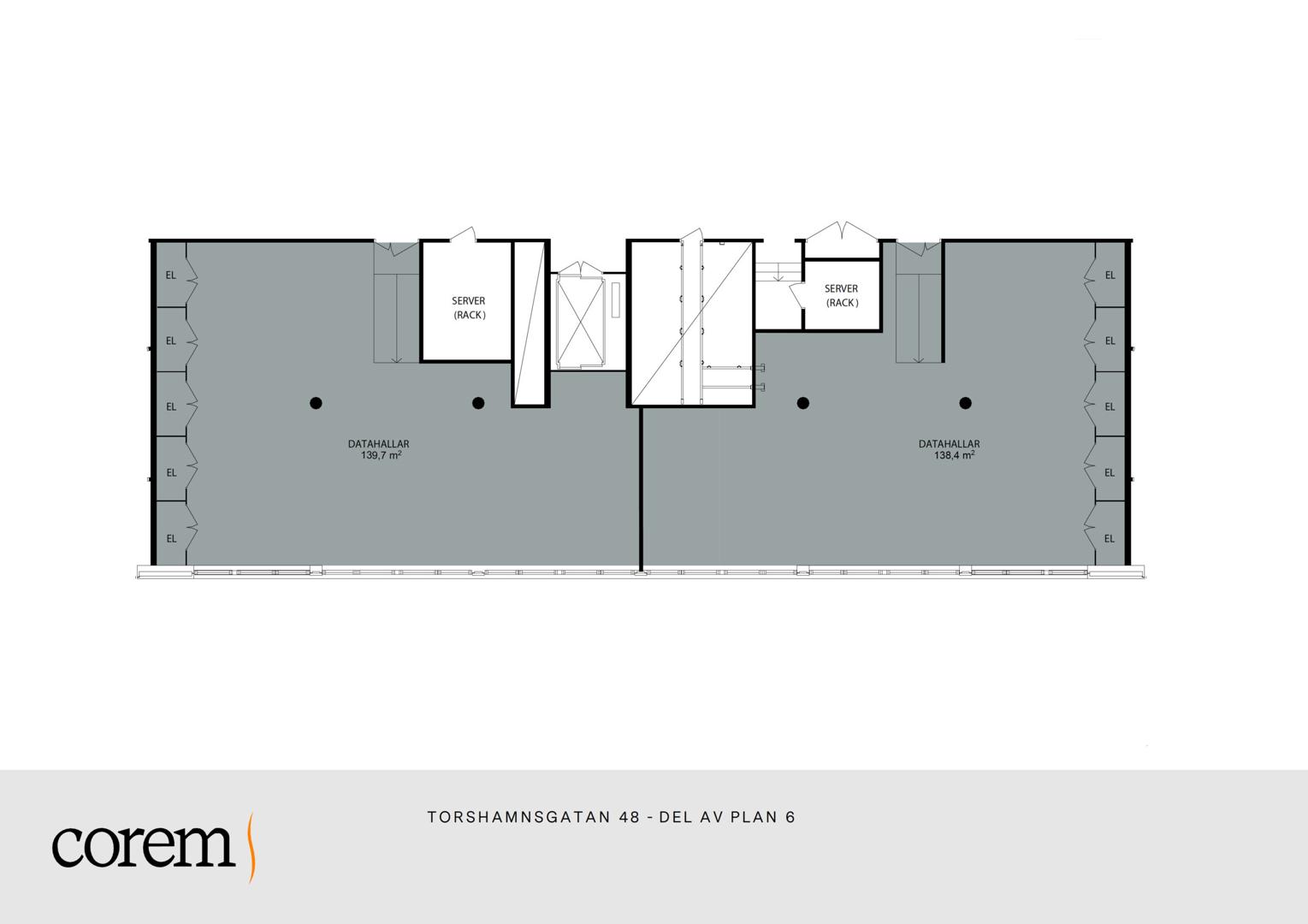
Välkommen till Torshamnsgatan 48 i Kista. Här finns två separata serverhallar att hyra om cirka 139 kvm. Lokalerna är utrustade med reservkraft, starkström och har UPS.
Området
Kista är en innovativ knutpunkt och en motor för Sverige vad gäller informations- och kommunikationsteknik. Här skapas morgondagens tekniska lösningar. I kombination med sitt strategiska läge och sina goda kommunikationer är stadsdelen en attraktiv plats att bo, arbeta och verka i.
Kista genomgår just nu en omfattande stadsomvandling där företags- och bostadsområden knyts samman. Här görs plats för fler arbetsplatser, bostäder, restauranger, parker och ett rikt kulturliv. Tvärbanan byggs också ut mot Kista vilket innebär ännu bättre kommunikationer inom en snar framtid. Målet är att skapa en blandstad som lever dygnet runt.
Kista erbjuder redan idag ett brett och varierat serviceutbud i till exempel Kista galleria. I området finns även skolor, vårdcentraler, tandläkare, träningsanläggningar och goda möjligheter att samla kollegorna över roliga after work-aktiviteter. Mindre stadsparker samsas med större grönområden så som Järvafältet eller Ursviks motionsområde.
Kommunikationer
Från Kista når du Stockholms City på 12 minuter med pendeln. Du har promenadavstånd till tunnelbanan som tar 16 minuter till T-centralen. Här finns också bussar och en planerad tvärbana. Området ligger i direkt anslutning till de stora motorlederna. Med bil når du Bromma flygplats på 12 minuter och Arlanda flygplats på 20 minuter.
Parkering
Garageplatser finns i samma fastighet med hiss till respektive våningsplan.
Övrigt
Corem erbjuder lokalt baserad förvaltning och drift. Vi finns alltid nära till hands när det behövs och delar gärna med oss av vårt breda kunnande inom lokal- och fastighetsfrågor. Närhet och engagemang är våra ledord. Tillsammans hittar vi kreativa lösningar för att göra din arbetsplats så bra som möjligt. Du som kund är alltid i vårt fokus.
Bilder
Karta
Intresseanmälan
Anmäl ditt intresse för
Torshamnsgatan 48
Fyll i dina uppgifter i formuläret, så hör vi av oss snabbt för att diskutera dina behov och önskemål.
Liknande lokaler
Torshamnsgatan 9
Stockholm
Industri, Kontor, Lager, Övrigt • 2 011 - 2 285 kvm
Kontor-, lager- eller produktionsverksamhet i Kista.
Österögatan 2
Stockholm
Industri, Kontor, Lager • 2 790 - 4 350 kvm
Lager-, logistik- eller produktionslokal vid Kymlingelänken
Torshamnsgatan 30B
Stockholm
Industri, Kontor, Lager, Övrigt • 1040 kvm
Kontors- och lagerlokal med generös takhöjd i centrala Kista