Hagagatan 6, Himmelstalund

Fin butikslokal i utmärkt läge

Om lokalen

Hagagatan 6

  • Område

    Himmelstalund

  • Lokaltyp

    Butik

  • Lokalstorlek

    537 kvm

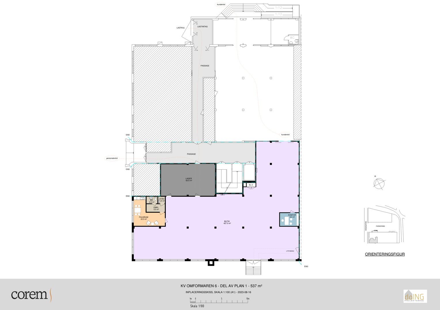
Lokalen

Nu har du möjlighet att hyra en fin butikslokal vid Norra Himmelstalund och Haga. Butiken har gemensam entré med ÖoB och ett kundtorg för exponering av varor som delas av de båda butikerna. Lokalen består av cirka 427 kvm butiksyta med ett kontor, ca 63 kvm lageryta, personalutrymmen med omklädning, pausrum, wc och städförråd. Inlastning sker via lastkaj med port. Det finns en gemensam kundparkering för fastigheten med cirka 90 platser och möjlighet att hyra egna parkeringsplatser utomhus eller i varmgarage.

Kontakta oss gärna för mer information eller för att boka visning.

Området

Himmelstalund är en stadsdel i västra Norrköping. Området delas upp i två delar, en norr och en söder om Motala ström. Södra Himmelstalund utmärks av flera idrottsanläggningar medan Norra Himmelstalund till stor del består av industribyggnader med direkt närhet till E4:an. Norra Himmelstalund befinner sig på en expansiv resa. Det finns planer på bland annat bostäder, skolor, handel och service. Stadsdelen är överlag känd för att vara ett friluftsområde och fornminnesplats.

Kommunikationer

Fastigheten ligger vid stadsdelen Haga och Norra Himmelstalund där det finns goda kommunikationer.

Parkering

Gemensam kundparkering för hela fastigheten. Möjlighet att hyra egna parkeringsplatser utomhus eller garageplats i källarplan.

Övrigt

Corem erbjuder lokalt baserad förvaltning och drift. Vi finns alltid nära till hands när det behövs och delar gärna med oss av vårt breda kunnande inom lokal- och fastighetsfrågor. Närhet och engagemang är våra ledord. Tillsammans hittar vi kreativa lösningar för att göra din arbetsplats så bra som möjligt. Du som kund är alltid i vårt fokus.

Bilder

Karta
Intresseanmälan

Anmäl ditt intresse för
Hagagatan 6

Fyll i dina uppgifter i formuläret, så hör vi av oss snabbt för att diskutera dina behov och önskemål.

  • Genom att klicka på kontakta mig samtycker jag till att min angivna e-postadress behandlas enligt gällande integritetspolicy.